Features & Amenities

Interior

  • Other Interior Features

    Eat-in Kitchen, Pantry, Recessed Lighting

  • Total Bedrooms

    1

  • Bathrooms

    1

  • Above Grade Finished Area

    773.0

  • Basement YN

    NO

  • Cooling YN

    YES

  • Cooling

    Central Air

  • Fireplace YN

    NO

  • Heating YN

    YES

  • Heating

    Electric, Central

  • Main Level Bedrooms

    1

  • Pet friendly

    N/A

Exterior

  • Garage

    No

  • Construction Materials

    Brick

  • Parking

    Assigned

  • Patio and Porch Features

    Patio

  • Pool

    No

  • Waterfront YN

    NO

  • View

    Trees/Woods

Area & Lot

  • Property Type

    Residential

  • Property Sub Type

    Condominium

  • Architectural Style

    Unit/Flat

Price

  • Sales Price

    $130,000

  • Tax Amount

    $614

  • Sq. Footage

    773

  • Price/SqFt

    $168

HOA

  • Association

    Yes

  • Association Fee 2

    $271

  • Association Fee 2 Frequency

    Monthly

  • Association Fee Includes

    N/A

School District

  • Elementary School

    TIMBER GROVE

  • Middle School

    FRANKLIN

  • High School

    FRANKLIN

Property Features

  • Senior Community YN

    NO

  • Sewer

    Public Sewer

  • Water Source

    Public

Schedule a Showing

Showing scheduled successfully.

<
>
IN PERSON
VIA CHAT

What is 3 + 4 ?


Change time

Mortgage calculator

Estimate your monthly mortgage payment, including the principal and interest, property taxes, and HOA. Adjust the values to generate a more accurate rate.

Your payment

Principal and Interest:

$

Property taxes:

$

HOA fees:

$

Total loan payment:

$

Total interest amount:

$

Location

County

BALTIMORE

Elementary School

TIMBER GROVE

Middle School

FRANKLIN

High School

FRANKLIN

Listing Courtesy of Stephanie M McClellan , Northrop Realty

RealHub Information is provided exclusively for consumers' personal, non-commercial use, and it may not be used for any purpose other than to identify prospective properties consumers may be interested in purchasing. All information deemed reliable but not guaranteed and should be independently verified. All properties are subject to prior sale, change or withdrawal. RealHub website owner shall not be responsible for any typographical errors, misinformation, misprints and shall be held totally harmless.

Agent Hilery Leatherman

Homes By Hil- Team Leader

Hilery Leatherman

Call Hilery today to schedule a private showing.


* Listings on this website come from the FMLS IDX Compilation and may be held by brokerage firms other than the owner of this website. The listing brokerage is identified in any listing details. Information is deemed reliable but is not guaranteed. If you believe any FMLS listing contains material that infringes your copyrighted work please click here to review our DMCA policy and learn how to submit a takedown request.© 2024 FMLS.
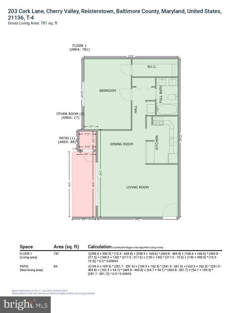
Welcome home to this completely renovated first floor condo in Chestnut Hills featuring one bedroom and one bathroom. Remodeled throughout with a modern neutral color theme and exceptional finishes. Adorned with brand new lighting, luxury vinyl plank flooring, paint, trim, and kitchen appliances. The open floor plan includes a spacious living area with recessed lighting and sliding glass doors to the rear patio that overlooks the woods. The dining area boasts a statement chandelier and the eat-in kitchen is complete with a breakfast bar, a pantry, and stainless steel appliances with gas cooking. The bedroom has a large walk-in closet and the new bathroom highlights a dual-sink vanity and a tub-shower. Additionally, a convenient stacked washer and dryer has been added to this unit. You will love having an assigned parking spot right outside the door and the community pool is perfect for the summer. Fantastic location close to a wide variety of excellent shopping, dining and entertainment options with quick access to 795 and 695.

203 CORK LANE T-4

Message successfully sent.

What would you like to know?

What is 3 + 4 ?

Related Properties

Investors will delight  to own this  charming, well maintained condo nestled in sought after Gardens of Owings Mills. This property already has a great tenant who would love to remain and continues to maintain and care for this home. The  home is located in a lovely community that offers great dining and shopping. Easy access to I-695, I-795 , Baltimore and DC.  Ample parking for family and friends, NEW HVAC. Please contact the listing agent with questions.
#MDBC2148882

REISTERSTOWN

11913 TARRAGON ROAD A A

1 Beds

1 Baths

716 Sq.Ft.

$125,000

MLS#: MDBC2148882

HUD‑approved one‑bedroom condo, eligible for FHA financing, offering a bright, open living and dining area with space for a home office and a large balcony that extends your living space outdoors. The bedroom features a generous walk‑in closet; the unit also includes in‑home laundry, a full bath, a hallway storage closet, and additional storage on the same floor for seasonal items.

The modern kitchen is thoughtfully laid out with contemporary cabinetry, a breakfast bar, gas range, and dishwasher, making everyday cooking effortless. Residents enjoy a convenient location close to shopping, dining, and transit, plus a community swimming pool just steps away; water is included in the reasonable condo fee and assigned parking is provided. Would you like to schedule a showing?
#MDBC2153690

REISTERSTOWN

105 FITZ COURT 202

1 Beds

1 Baths

774 Sq.Ft.

$129,900

MLS#: MDBC2153690

New on site 3 days ago
NO STEPS!  So close to the parking lot.  Very accessible.  Jacuzzi Tub! Wildlife right out front, including deer.
Cute 1 bedroom condo in the Huntsman. Rarely available and priced to sell, this unit offers a warm updated Ikea kitchen with modern cabinetry,  living room, full bath has a jacuzzi tub, ceramic tile floor and updated vanity, an ample bedroom that offers  space for a king size bed and  two  walk-in closets, plenty of storage. The community has a pool and playground areas. Property is being sold as is.
#MDBC2154096

REISTERSTOWN

195 SHETLAND CIRCLE 195

1 Beds

1 Baths

640 Sq.Ft.

$119,500

MLS#: MDBC2154096

 - property

Send a message

Message successfully sent.

Your message

What is 3 + 4 ?

Reason for contacting?

Sign Out

Virtual Assistant

Would you like to take the next step with this property? We can help you schedule a showing or virtual tour, or send you more details.

Yes, I would like more information.

Thank You for Your Reply, One of Our Agents will contact you as soon as possible

No, maybe later.

Thank you, you can always contact me via email, phone number or through the contact form.

Realhub AI

Lucy - Your AI-Powered Realtor

Update Your Temporary Password

Personalize your search

Enter your email and we'll notify you immediately when new listings match what you're looking for.

or enter email address

Already have an account ? Login here

Continue your home search

Already have an account ? Login here

We use cookies

We use cookies primarily for analytics to enhance your experience. By accepting, you agree to our use of these cookies. You can manage your preferences or learn more about our cookies policy.